Moderne 3-Zimmer-Wohnung in Lindlar mit Balkon

Rheinstraße **, 51789, Lindlar

  • Apartment
  • |
  • 85 m²
  • |
  • 3 Bedrooms
  • |
  • 18 days ago

Last scan: 2 hours ago info

Daily views icon1 views last 24 hours

Ask a question

About this property

Sign up to see all the photos and details for this rental property
Register Now

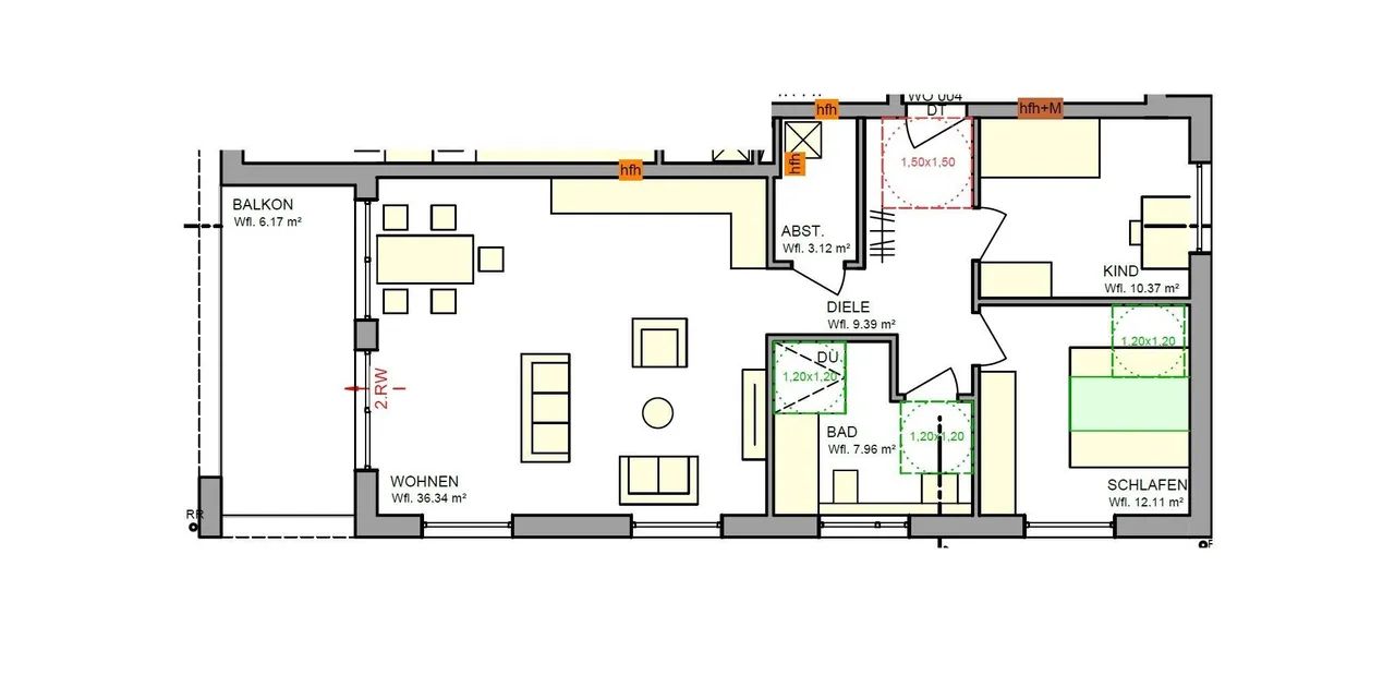
Welcome to your new urban retreat at Rheinstraße 58, 51789, Lindlar! This modern 3-bedroom apartment offers a stylish and cozy living space. The open-concept layout is perfect for entertaining, and the sleek kitchen is equipped with top-of-the-line appliances. With its prime location, you'll be just steps away from the city's best restaurants, shops, and entertainment venues. Priced affordably at € 1,240, this apartment is a fantastic opportunity to enjoy city living at its finest. Don't miss out – schedule a viewing today!


Property features
Property type
Size
85 m²
Bedrooms
3
Floor
2
Pets allowed
No
Balcony
Yes
Parking Questions icon
Yes
Year built
2025

About the rental
Monthly rent
€ 1,240
Utilities
€ 240
Deposit
€ 2,280
Rental period
-
Date available
Jan 03

Noticed an error in the listing?
Help us make Rentumo better - report any incorrect information and we'll take care of it.
Report an issue

FAQ

Gain unlimited access to all details of all search results on Rentumo with a Premium membership. Click here to sign up for Rentumo Premium.

You are searching 1-5 rental websites. We search more than 350 for you. We find over 200 new homes daily from all websites. You receive notifications every hour with new matches. You save over 1 hour of searching every day using Rentumo.

Sign up for a SearchAgent and receive notifications, ensuring you’re the first to know when new homes become available on the market. Click here to sign up for FREE.

This listing is found on another website, as we scour over 6600 websites across World to consolidate all listings into one convenient search for you. In other words, we do all the searching for you.

Always insist on meeting landlords in person before making any deposits. If a landlord asks for a deposit before you’ve seen the property, consider it a red flag. Ensure you book a viewing, meet in person, and obtain a signed contract before proceeding with any payments.

If the rental is no longer available, has the wrong address or seems incorrect, please report it here.

We scan 6,586 rental websites daily and find hundreds of new listings every day to send you fast notifications.

If there's an issue, we'll review it quickly — and you may be eligible for a refund.

Report an error here.

Location All apartments for rent in Lindlar

Haven't found a new home yet?

  • Create a free Search Agent
  • +9,800 new homes daily
  • 7 out of 10 people who found a new home subscribed to our SearchAgent
  • Your search criteria

Lindlar
€ 1,400/month, min. 3 bedrooms

Monthly rent
1,240
Contact
Logo
Close
Home icon