City-Residence: Schöne, großzüge Wohnung im Retrostil im Frankfurter Norden

60439 Frankfurt

  • Apartment
  • |
  • 120 m²
  • |
  • 3 Bedrooms
  • |
  • 15 hours ago

Last scan: 5 hours ago info

Daily views icon1 views last 24 hours

Ask a question

About this property

Sign up to see all the photos and details for this rental property
Register Now

Welcome to your new urban retreat at 60439 Frankfurt! This modern 3-bedroom apartment offers a stylish and cozy living space. The open-concept layout is perfect for entertaining, and the sleek kitchen is equipped with top-of-the-line appliances. With its prime location, you'll be just steps away from the city's best restaurants, shops, and entertainment venues. Priced affordably at € 2,100, this apartment is a fantastic opportunity to enjoy city living at its finest. Don't miss out – schedule a viewing today!


Property features
Property type
Size
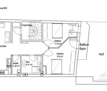
120 m²
Bedrooms
3
Floor
2
Furnished
Yes
Senior friendly
No
Year built
1908

About the rental
Monthly rent
€ 2,100
Utilities
-
Deposit
€ 4,200
Rental period
-
Date available
-

Noticed an error in the listing?
Help us make Rentumo better - report any incorrect information and we'll take care of it.
Report an issue

FAQ

Gain unlimited access to all details of all search results on Rentumo with a Premium membership. Click here to sign up for Rentumo Premium.

You are searching 1-5 rental websites. We search more than 350 for you. We find over 200 new homes daily from all websites. You receive notifications every hour with new matches. You save over 1 hour of searching every day using Rentumo.

Sign up for a SearchAgent and receive notifications, ensuring you’re the first to know when new homes become available on the market. Click here to sign up for FREE.

This listing is found on another website, as we scour over 6600 websites across World to consolidate all listings into one convenient search for you. In other words, we do all the searching for you.

Always insist on meeting landlords in person before making any deposits. If a landlord asks for a deposit before you’ve seen the property, consider it a red flag. Ensure you book a viewing, meet in person, and obtain a signed contract before proceeding with any payments.

If the rental is no longer available, has the wrong address or seems incorrect, please report it here.

We scan 6,583 rental websites daily and find hundreds of new listings every day to send you fast notifications.

If there's an issue, we'll review it quickly — and you may be eligible for a refund.

Report an error here.

Location All apartments for rent in Frankfurt am Main
348 similar properties
See all 348 similar results

Haven't found a new home yet?

  • Create a free Search Agent
  • +65,900 new homes daily
  • 7 out of 10 people who found a new home subscribed to our SearchAgent
  • Your search criteria

Frankfurt am Main
€ 2,200/month, min. 3 bedrooms

Monthly rent
2,100
Contact
Logo
Close
Home icon