72 rental homes found
Enköping
EHB:s trygghetsbostäder i Romberga ger dig möjlighet till...
3 bedroom apartment of 81 m² for rent in Sadelmakargatan ...
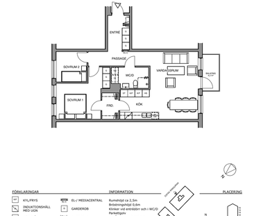
3 bedroom apartment of 80 m² for rent in Sadelmakargatan ...
BÄSTA LÄGET FÖR ETT PRAKTISKT, SOCIALT & AKTIVT LIV! Cent...
Välkommen till Trädgårdslägenheterna i Åkersberg, Enköpin...
Receive direct updates of similar homes.
1 bedroom apartment of 33 m² for rent in Gjutaregatan 11,...
En trevlig lägenhet med balkong in mot innergården. Ingån...
Materialen i lägenheterna har valts ut för att vara hållb...
Möjligt att hyra depositionsfritt genom Samtrygg. Månadsk...
Fin lägenhet belägen i stadsdelen Fanna uthyres från 1/10...
Lägenheten ligger i centrala Enköping med gångavstånd til...
Fin lägenhet med högt i tak och öppen planlösning i fd in...
Ljus och modern lägenhet med mycket förvaringsmöjligheter...
Lägenheten ligger centralt i Enköping, bredvid Klosterpar...
1 bedroom apartment of 27 m² for rent in Rombergsgatan 15...
I Enköpings centrum växer ett nytt kvarter fram med 160st...
3 bedroom apartment of 76 m² for rent in Sadelmakargatan ...