Please try to include as much detail as possible.
Are you interested in this property? Contact the landlord here instead.
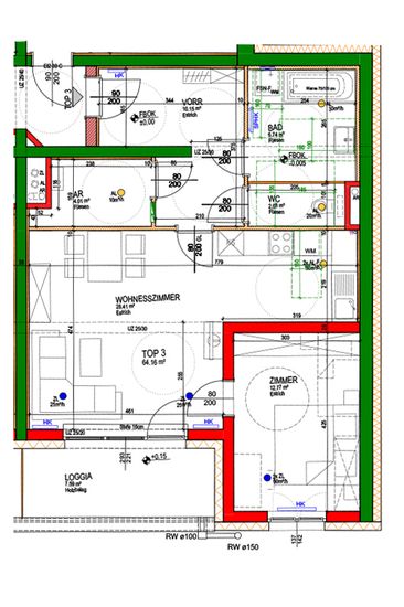
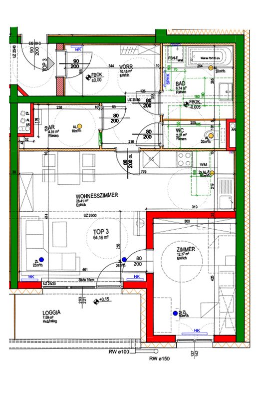
2 Bedrooms
-
Apartment
64 m²
Copied