Please try to include as much detail as possible.
Are you interested in this property? Contact the landlord here instead.
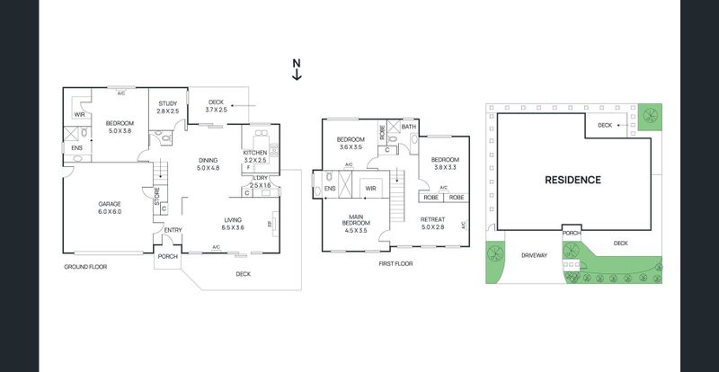
4 Bedrooms
-
Townhouse
239 m²
Copied