502 rental homes found
Uppsala
Hej! Jag hyr ut en modern 1,5:a i södra Rosendal, Uppsala...
En unik lägenhet på 60 kvadrat med förstahandskontrakt i ...
Well designed and modern studio with a nice cooking area ...
En välplanerad 1,5a mitt i Uppsala. Lägenheten har allt e...
Hej! Jag hyr ut ett rum på 15kvm som är möblerat med säng...
3a i Rosendal Vi hyr ut vår lägenhet i norra Rosendal i ...
Receive direct updates of similar homes.
Ljus och modern, välplanerad 2-rums lägenhet - totalrenov...
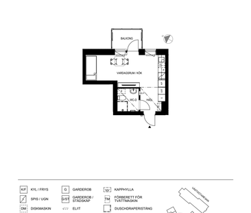
Denna bostad är utrustad med barkök, badkar/wc, kyl/frys ...
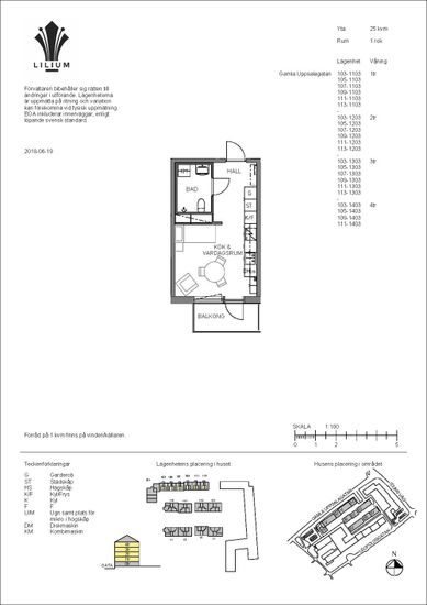
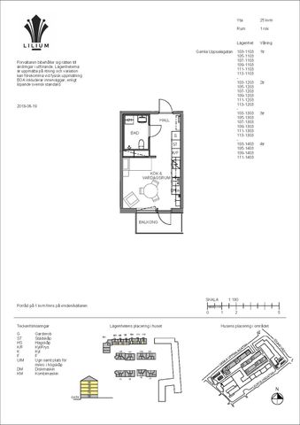
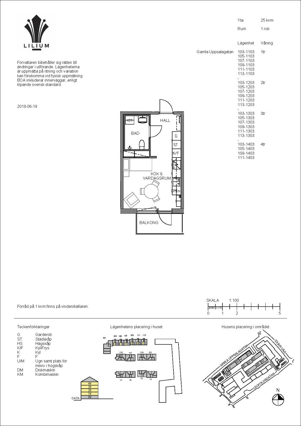
Observera att planritningen kan vara spegelvänd och bilde...
Lägenheterna är välplanerade och ljusa med balkong eller ...
Lägenheterna byggdes av Wallenstam och är utrustade med ...
Loftgångshus. Denna bostad är utrustad med badkar/wc, bar...
Här finns 1 rum och kokvrå 3 trappor upp och direkt utanf...
Denna bostad är utrustad med barkök,badkar/wc, kyl/frys o...
LÄGENHETERNA: Bostädernas storlek varierar mellan 1 till ...
Uthyres: Möblerad lägenhet med uthyrningsdel – Bellmansga...
Loftgångshus.Denna bostad är utrustad med badkar/wc, bark...