Please try to include as much detail as possible.
Are you interested in this property? Contact the landlord here instead.
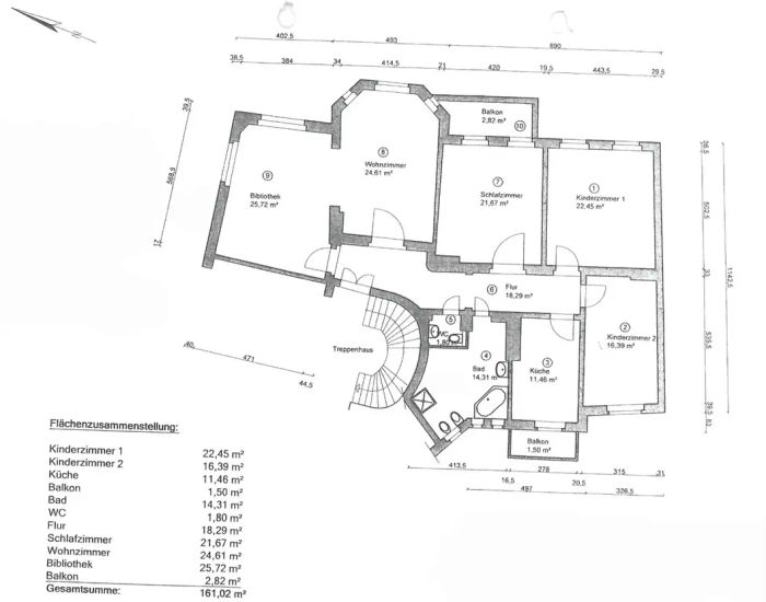
5 Bedrooms
-
Apartment
161 m²
Copied