Please try to include as much detail as possible.
Are you interested in this property? Contact the landlord here instead.
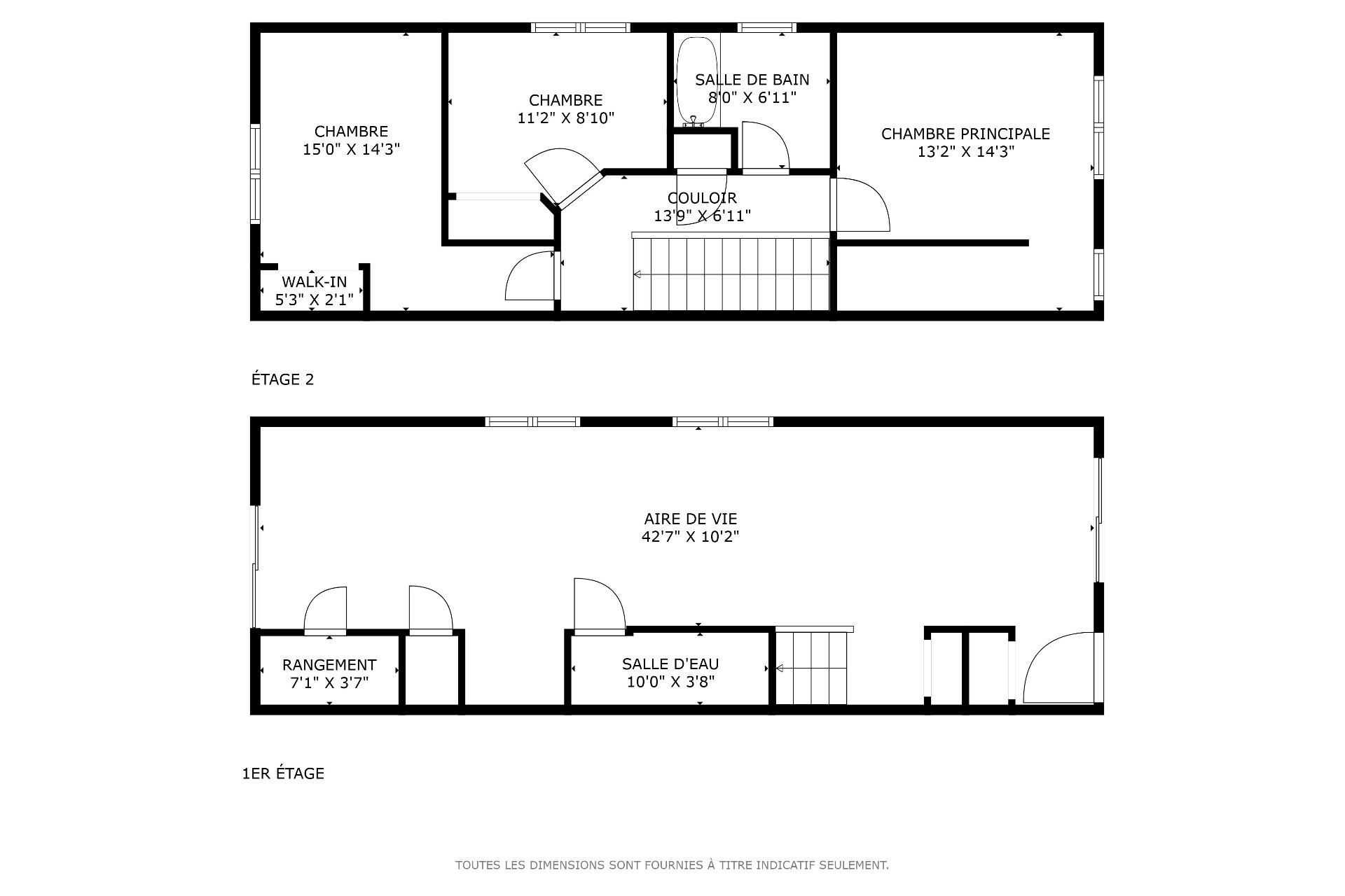
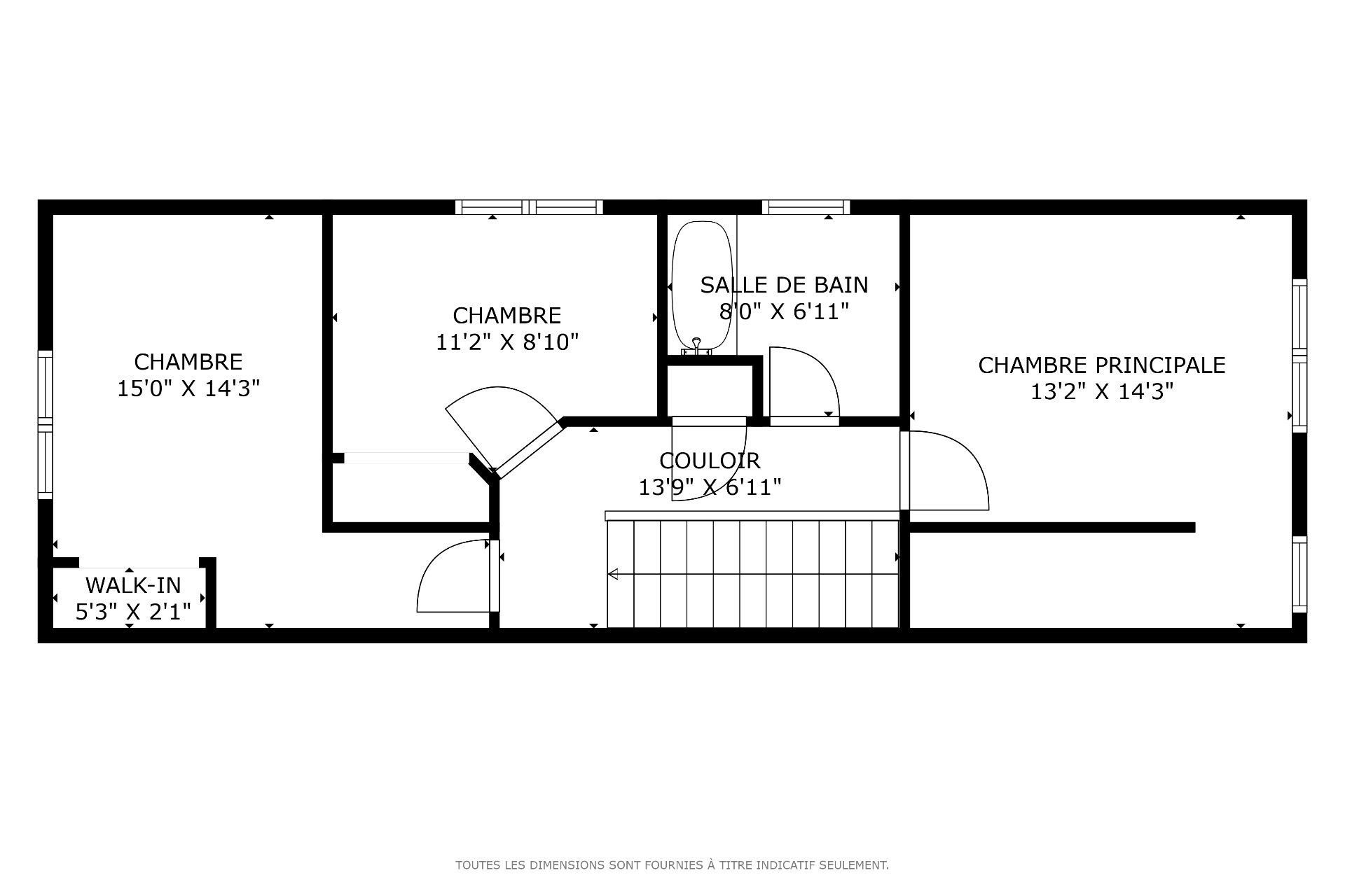
3 Bedrooms
-
Apartment
148 m²
Copied