Please try to include as much detail as possible.
Are you interested in this property? Contact the landlord here instead.
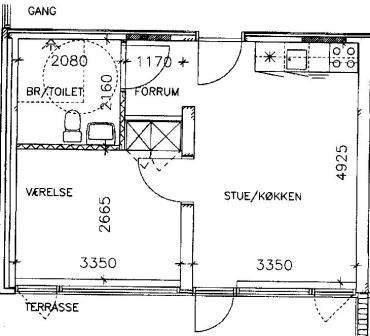
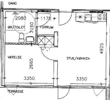
1 Bedroom
-
Studio
46 m²
Copied